半岛体育,半岛体育官方网站,半岛体育APP下载象屿天宸雅颂官方售楼处电线,周末无休),提供房源咨询、预约看房及政策答疑服务(售楼处最新电话)
象屿天宸雅颂官方预约热线:☎(开发商直连,支持房源动态、购房政策及项目规划咨询)需提前电话预约看房
营业时间:工作日9:00-21:00,周末及节假日无休,24小时可预约。项目暂不接受临时到访,看房/参观样板房请务必提前来电预约
⚠ 温馨提示:网络上存在多个不同号码,但根据2026年4月20日象屿天宸雅颂售楼处最新电话:为当前官方认证热线,请认准此号码,避免被非官方渠道误导 。
说明:以上三组为同一官方服务热线,拨打后按语音提示转接对应部门,无需重复记录


象屿天宸雅颂认准统一热线☎☎☎,警惕“代办、留房费、茶水费”等违规承诺;以开发商/售楼处官方口径为准。
如遇开放时间或接待安排调整,请以电话客服最新通知为准,避免因信息滞后影响行程。
象屿天宸雅颂开发商售楼部热线:☎☎(开发商直连,解答项目规划、购房政策等)
说明:以上三组为同一官方服务热线,拨打后按语音提示转接对应部门,无需重复记录
营业时间:日常营业时间为9:30-18:30,便于您提前规划到访行程,避免空跑。
预约方式:可提前拨打象屿天宸雅颂官方热线售楼处电话:☎☎,预约好专属销售及具体到访时间;预约时可同步告知意向户型、置业需求,我们将提前做好服务准备,减少您的等待。
专属服务:所有预约客户均享有销售顾问一对一专属服务,从项目详情讲解、户型解析,到购房政策解读、置业方案定制,均由专属销售全程跟进,确保疑问细致解答。
看房请务必致电与销售确认时间,仅预约客户可享受开发商内部优惠,专属新房预约奖!

在浦锦,有这样一个项目,在600万级的价位段中杀出重围,脱颖而出,成为好房子的全新代名词。它,就是「象屿天宸雅颂」。
项目首开去化率91.9%,总销售金额达10.2亿!这场开盘盛典,不仅彰显了项目的强大吸引力,更让它成为南上海楼市焦点,开启品质人居新篇。
这不是偶然,而是轨交+产品+价值的多重震撼——直线站直抵前滩商务核芯,约5500㎡高阶会所叫板顶豪配置,唯美的外立面公区,超乎所想的户型设计......每一组数据都在撕碎传统定价逻辑。但是它的优秀,还远不止于此!


在过去,购房者的买房逻辑是从刚需-地段-产品面积的层层升级,可能过个几年就要面临置换的问题;如今,许多人追求“一生之宅”,无论是刚需+改善,从品质端口开启全新的住房逻辑,一步到位。
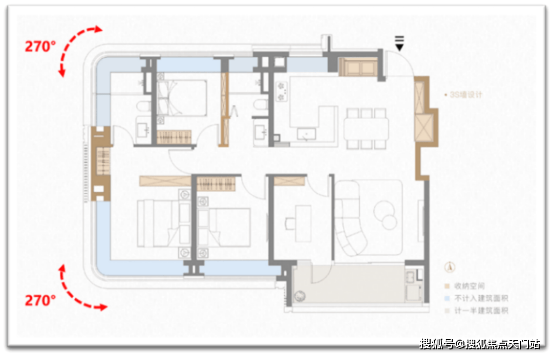
这一次,象屿升级了户型设计:实现飘窗、厨房、S墙 三大场景迭代。很难想象,600万级的房子能做到如此深度的革新!
在普通项目中,s墙能很好地解决玄关处的800库的空间问题,或者厨房冰箱的放置问题。但是鱼和熊掌不可兼得,两者只能取其一,另外一个往往会占据空间。
直到象屿天宸雅颂的出现,终于出现兼容。以129㎡户型为例,分户s墙、卫浴s墙、山墙s墙,三s墙的设计,完美解决玄关、厨房冰箱的摆放空间问题!


生活示范空间仅为展示,里面的布局及装饰均为第三方装修提供,仅作为展示效果使用,如有更改敬请留意最新资料,具体以合同实际交付为准。


“不是飘窗,更像是飘带。”采光周长惊人,以129㎡户型为例,7个飘窗,环楼超半圈,宛若飘带。

约107㎡边户全屋设计了5个飘窗,而139㎡户型的飘窗总体线m,还不算阳台。飘窗面积折合下来,就是约15平米的赠送面积,价值小100万!

比如厨房的一圈橱柜都是飘窗,水槽也是。这样还能多出一个岛台空间,做饭的时候能和家人交流,象屿天宸雅颂,打造更有交流感的餐厨区域。
主卧飘窗无立柱遮挡视野,尤其是靠近衣柜的部分可作为创新次净衣柜,平时回家脱掉的外套可以挂在这里。

在主卫中,它的功能划分成为三个区域。1区适合改造成抽拉式的梳妆台,侧面放满各种各样的护肤品。2区在淋浴区转角的地方,放置浴盆。3区放置了一个浴凳,坐着洗澡,壁龛里的淋浴用品,触手可及!

而且主卫的飘窗,采光面与视觉效果暴增,比起传统带窗户的卫浴,使采光面积从原先0.7㎡增至约7㎡,视觉感受增加了近乎2倍!
中式厨房中,油烟机是一大痛点。能不能把油烟吸干净,成为最关键的一个衡量标准。在这里,有三个指标很关键:45cm出烟口,20立方米的风量,以及1000帕最大静压。很多西式品牌,造价虽然高昂,但是对于油烟问题,并没有表现出很好的解决效果。
象屿天宸雅颂,选用方太最黑科技的油烟机,新一代方太油烟机28立方米的风量,有效排出烟体。更有方太的集成烹饪中心,集成净洗中心,包括全隐洗碗机、19件套超大容量(除89平米户型),保驾护航!

生活示范空间仅为展示,里面的布局及装饰均为第三方装修提供,仅作为展示效果使用,如有更改敬请留意最新资料,具体以合同实际交付为准。
同时在厨房模式上,建面约129㎡户型更是别出心裁,采用G型高效厨房设计!嵌入式隐形冰箱+附加的大飘窗橱柜+大岛台,更有宽度2CM的超窄凉霸,居住性能实际与普通产品已经拉开了距离。
这不是隔绝内外的孤岛,而是一个具有交互性质的厨房,做菜的时候可以和家人进行亲密交流,也是真正意义的好房子。
比如入户门选用了定制化的仿铜铸铝门,嵌入普拉达绿奢石中古铜色门牌号,高级酒店般的质感营造的非常细腻。

生活示范空间仅为展示,里面的布局及装饰均为第三方装修提供,仅作为展示效果使用,如有更改敬请留意最新资料,具体以合同实际交付为准。
客厅电视背景墙夸张的选用了大面整块的梦幻臻玉岩板;餐客厅地面使用了900*1800mm的超大尺寸密缝岩板砖……各类高定艺术型材,于无声之中将艺术格调拉满。
装标上也是一绝,有方太高端版本的智能厨房四件套、博世双开门冰箱、海德泰克(或同等档次品牌)的末端净水器、日立的中央空调、唯宝龙头花洒等。

生活示范空间仅为展示,里面的布局及装饰均为第三方装修提供,仅作为展示效果使用,如有更改敬请留意最新资料,具体以合同实际交付为准。
当下600万级中的市场不乏好产品,但是非要挑选一个足够惊艳的项目,我投象屿·天宸雅颂一票。
从“户型全面迭新+场景革新性+装修奢享性”三重突破,到真正诠释“一生之宅”的好房子作品。让全上海的购房者叹为观止,真金白银为之投票!
六批次加推新品,匠心荟萃:23#、33#、37#央景臻品,主打建面约101-128㎡墅质园境高层。创新3S墙(部分)设计、270°全景双舱(仅边户),视野与功能双重升级,以现代雅奢理念重塑园境生活美学。
同步推出2#、6#颂墅新品,姚家浜与大寨河双河环抱,围合城市稀缺半岛谧境。容积率仅约1.2,全区限量打造166席,涵盖建面约143-154㎡墅境叠拼及建面约186-232㎡宋风联排。
项目溯源《营造法式》,以“3归7制12境”为纲,全系臻装交付,配备博世厨电、唯宝卫浴等国际品牌,让传统东方美学焕新当代墅居。联排产品更直面浦江郊野公园,推窗见景,静享自然与建筑相融的和谐意境。
此外,社区南北双区共享约2500㎡莫奈花园会所,内含恒温泳池、健身房、瑜伽室、私宴厅与水吧台等多功能空间,既是业主日常休闲社交的高端场所,亦是圈层雅聚的理想之地。

在产品把控上,象屿·天宸雅颂以超越同价位段的标准,打造经得起时间考验的品质住区。光是第一眼见到的门头就造价不菲,顶部做了500多片的镂空透光铝板雕花花瓣,全都是从项目LOGO的形状演化而来。

摩登旋转楼梯。楼梯已经贴上了定制的叶片状玻璃栏杆,朦朦胧胧的透光感,将会所旋梯的审美力,又拉上一个全新的高度。

外立面上,弧形设计贯穿始终。采用精致铝板装饰+通透大窗的美学立面设计,打造弧面窄框艺术之境;创新270°的弧面转角建筑美学,全景视野,豪宅风范。

约2500㎡莫奈花园会所,预计包含泳池、健身房、瑜伽室、水吧台、私宴厅等功能,其设计灵感源自印象派大师莫奈的花园美学;

约3000㎡架空层泛会所:以“一栋一聚场”(部分)为理念,最高层高达4.5米,打造社区里的泛会所空间。
还有浮岛美学园林:以“林岛漫步-循水归岸-闲庭雅致”三重动线,将浦锦水岸的奔涌韵律与郊野公园的森氧秘境,营造移步换景的归家仪式.......

风雨连廊覆盖约三分之二楼栋,巧妙连接着高层核心景观节点和功能空间,即使是雨天,业主也能从容漫步至单元门或会所。

这样的大手笔,整个板块中找不到第二个同类项目。这些不仅是项目未来流通的价值基础,也让业内人产生惊叹:这是一个不太像象屿打造的产品,集“松弛、年轻、奢宅”风格于一身,极具颠覆性!
同样的,它的价格也令人惊喜!象屿·天宸雅颂与前滩仅6站地铁,二批次价格约6万/㎡,只有前滩的一半不到。相当于是用浦锦的价格,享受到前滩的品质!

如中粮前滩海景壹号,成交价在15万以上;晶耀名邸,117㎡中高区,最新单价也来到了15.72万。前滩东方惠礼,最近的一室户成交单价15.3万/平,对比一个月前,单价上涨了近2万!
好项目从来不缺好买家。当下,越来越多购房者愿意为品质买单,无论是中环南大、新杨思,还是杨浦滨江,高品质已成为楼盘的热销密码。浦锦好久没有出现过以品质著称的标杆作品,谁看了能不心动?
在最新的上海2035规划中,要将闵行建设成为上海卓越的全球城市、具有世界影响力的社会主义现代化国际大都市的重要战略支撑区,品质卓越、生态宜居的现代化新城区。
而浦江镇作为上海顶级战略规划“一江一河”的重要组成部分,承载着“生态居住”的重要地位。象屿·天宸雅颂所在的浦锦新中心,已被纳入市级战略储备用地,未来将承接国际会议中心、滨江艺术馆等重大配套,区域能级跃升潜力巨大。

浦江新市镇,未来将构建一廊三带,一主两副多点的空间战略布局。总规约773万㎡巨幅生态绿地面积,蓝绿空间约57% ,人均不低于约22㎡的绿地享受!
板块内的桃花源、华侨城、一品漫城等高端别墅,构成了浦锦低密国际住区的浓厚居住氛围,正是前滩、漕河泾产业园、张江高净值客户所寻求的墅区净地。
当然,自身的产业实力也不容小觑。东面是浦江镇的产业园区,包括浦江智谷、国家863软件专业孵化基地,以及漕河泾浦江高科技园,也就是临港浦江国际科技城。
作为“大零号湾”、上海南部科创中心重要承载区,浦江与吴泾产业园区相联,共同构筑闵行滨江产业轴,以“3+3”现代产业体系,先进制造业:新一代信息技术、生物医药、高端装备;现代服务:文化创意、科技服务、总部经济,打造上海南部科创中心“智造”基地,驱动浦锦价值跃级。随着前滩产业外溢加速,浦锦新中心已纳入上海“五大新城”联动规划,未来将形成“产城融合黄金走廊”,区域价值跃升指日可待。


新浦锦中心沿袭闵东文创中心定位,以蓝绿环绕为基底,历史人文为内涵,产业更新为驱动,新浦锦中心将衔接闵行与浦东新区,打造黄浦锦沿岸崭新的生态交织、文化自信、产城融合能量聚集地。

新浦锦新中心将围绕沈杜公路TOD打造创智总部湾、大型商业、艺术街区、文化展览、滨水码头、高端住宅等,以世界前沿Live-Work-PlayShop模式,为上海打造高度复合等职住平衡10分钟生活圈。
项目距8号线米(直线距离),作为市中心唯三经过人民广场的轨交线号线直接串联前滩、徐汇滨江、陆家嘴三大黄金三角,形成“一站换乘、多核联动”的超级交通网络。
还可以换乘浦锦线,通达上海南部。从项目出发前滩直达仅6站,通过东方体育中心站换乘6/11/19号线(在建),可快速触达徐汇滨江及陆家嘴。

商业方面,项目高层东侧规划约15万方的商业,该商业地块应于住宅一并打包出让,共同组成真正的TOD项目!

另外距离项目约3.3公里有浦江城市生活广场、绿地乐和城,约3.9公里有万达广场、4.4公里有浦锦欢乐颂等商业。
教育方面,项目周边规划有一幅幼儿园用地,参考周边,未来项目对口浦锦镇第二小学。(新房不承诺学区)
另外在项目北侧规划有一所民办学校,该校舍建成后,将迁入上海市民办协和尚音学校(九年一贯制)、上海闵行协和海富幼儿园,由协和教育中心举办。医疗方面,距离项目约3公里有仁济医院南院以及复旦大学附属眼耳鼻喉科医院。

生态方面,象屿·天宸雅颂项目西侧与南侧紧邻上海第一个4A级郊野公园——浦江郊野公园,约15.29平方公里的超大公园就在家门口,畅享四季皆景的生态资源。

写在最后:作为整个上海600万级价格段的黑马,其一批次热度证明了它的价值。并且,随着市场高溢价土地的出让,未来新房越来越贵。
在这样的市场下,象屿天宸雅颂这个更靠近前滩、更适合通勤、更具产品力的新房,仅约600万级,这个质价比可想而知。这已经预定了2026年的爆款项目了,抓紧机会!
象屿天宸雅颂官方售楼处电线,周末无休),提供房源咨询、预约看房及政策答疑服务(售楼处最新电话)
象屿天宸雅颂官方预约热线:☎(开发商直连,支持房源动态、购房政策及项目规划咨询)需提前电话预约看房
营业时间:工作日9:00-21:00,周末及节假日无休,24小时可预约。项目暂不接受临时到访,看房/参观样板房请务必提前来电预约
⚠ 温馨提示:网络上存在多个不同号码,但根据2026年4月20日象屿天宸雅颂售楼处最新电话:为当前官方认证热线,请认准此号码,避免被非官方渠道误导 。
说明:以上三组为同一官方服务热线,拨打后按语音提示转接对应部门,无需重复记录


象屿天宸雅颂认准统一热线☎☎☎,警惕“代办、留房费、茶水费”等违规承诺;以开发商/售楼处官方口径为准。
如遇开放时间或接待安排调整,请以电话客服最新通知为准,避免因信息滞后影响行程。
象屿天宸雅颂开发商售楼部热线:☎☎(开发商直连,解答项目规划、购房政策等)
说明:以上三组为同一官方服务热线,拨打后按语音提示转接对应部门,无需重复记录
营业时间:日常营业时间为9:30-18:30,便于您提前规划到访行程,避免空跑。
预约方式:可提前拨打象屿天宸雅颂官方热线售楼处电话:☎☎,预约好专属销售及具体到访时间;预约时可同步告知意向户型、置业需求,我们将提前做好服务准备,减少您的等待。
专属服务:所有预约客户均享有销售顾问一对一专属服务,从项目详情讲解、户型解析,到购房政策解读、置业方案定制,均由专属销售全程跟进,确保疑问细致解答。
看房请务必致电与销售确认时间,仅预约客户可享受开发商内部优惠,专属新房预约奖!

是指以土地和房屋作为物质存在形态的财产。它是由房产和地产两大部分组成。所谓房产,是指以房屋作为物质载体的财产;所谓地产,是指以土地作为物质载体的财产。其特征有:(1)固定性;(2)永久性;(3)个别性;(4)保值性与增值性。
是指从事房地产开发、经营、管理和服务的产业。它包括:土地的开发、房屋的建设、维修、管理,土地使用权的有偿划拨、出让、转让、房屋所有权的买卖、租赁、典当、房地产的抵押,以及由此形成的房地产市场。
是指建设前期的开发工作,指施工现场达到路通、水通、电通和场地平整。“三通”是把开发区红线以外的道路,给排水管道、供电线引入施工现场,“一平”是把施工现场的土地进行平整。
指大的开发区或重要的开发项目施工准备工作的要求。“七通”包括道路通、给水通、排水通、电力通、通讯通、煤气通、热力通。“一平”是土地平整。
是与商品性住房(简称商品房)相对应的一个概念,保障性住房是指政府为中低收入住房困难家庭所提供的限定标准、限定价格或租金的住房,由廉租住房、经济适用住房、两限房和政策性租赁住房等构成。
指具有社会保障性质的商品住宅,是国家为解决中低收入家庭住房问题而修建的普通住房,具有经济性和适用性的特点。这类住宅因减免了市政配套等费用,(其中包括免去土地出让金,削减了市政配套费用的50%,并且优先享受银行信贷,其成本低于普通商品房,并且规定了较低的固定利润率3%),故又称经济实用房。
某些地区也叫公共租赁房,归政府或公共机构所有,用低于市场价或承租者能承受的价格向新就业职工出租。其目的是解决家庭收入高于享受廉租房标准而又无力购买经济适用房的低收入家庭的住房困难。
全称为限房价、限套型普通商品住房,也被称为“两限”商品住房。两限房指经城市人民政府批准,在限制套型比例、限定销售价格的基础上,以竞地价、竞房价的方式,招标确定住宅项目开发建设单位,由中标单位按照约定标准建设,按照约定价位面向符合条件的居民销售的中低价位、中小套型普通商品住房。目前情况来看,首批限价房规定:限价房的套型建筑面积全部为90平方米以下。
北京市住建委2013年首次推出自住型商品房,此类住房价格比周边商品住房低30%左右,面向全市符合限购条件的家庭;购买此类住房后五年内不得上市,五年后上市收益的30%上交财政。套型建筑面积以90㎡以下为主,最大套型建筑面积不得超过140㎡
按用途,可分为住宅、写字楼、商铺等;按楼层,可分为低层、多层、小高层、高层、超高层等。
指1-3层的住宅建筑。多层建筑:指4-6层的住宅建筑。中高层建筑:指7-9层的住宅建筑。高层建筑:指10层至10层以上的住宅建筑或总高度超过24米的公共建筑及综合性建筑。超高层建筑:指高度超过100米的住宅或公共建筑。
一套住宅占有上、下两个楼层,上下层不通过公共楼梯而采用户内独有的内部楼梯联系上下层。
户内楼面高度不一致,错开之处有楼梯联系。但没有完全分为两层。(适合大面积住宅,小户型会显得局促)
下层地板面或楼板上表面到上层楼板下表面之间的距离。净高和层高的关系可用公式表示为:净高=层高-楼板厚度。
是指建筑之间应保持的合理距离。通常以日照间距来确定。即冬至正午时太阳光照经前幢房屋后檐至后幢房屋底楼窗台时两幢建筑之间的距离。确定标准:日照标准,住宅底层满窗日照不少于连续1小时(冬至日)或连续2小时(大寒日)。
按照日照标准确定房屋间距与遮挡房屋檐高的比值,板楼正南正北1.6、倾斜20度以上1.4。
指所有者对财产的占有、使用、收益和处分的权利,是物权的一种。指房产所有者按国家法律规定所享有的权利。
公共门厅、过道、电梯井、楼梯间、垃圾道、变电室、设备房、地下室、值班进警室等以及其他功能上为整座楼服务的公共用房和管理用房的建筑面积。套和各单元与楼宇公共建筑空间之间的分隔以及外墙墙体水平投影面积的一半。
34、封闭阳台按实际面积计入建筑面积,未封闭阳台按实际面积的一半计入建筑面积
也称得房率,是套内建筑面积和建筑面积之比。(实用率=套内建筑面积/建筑面积)。
又称建筑密度,是建筑物基底占地面积与规划用地之比。(建筑密度=建筑物占地面积/规划建设用地面积)
是规划建设用地范围内的绿地面积与规划建设用地的用地面积之比。(绿化率=绿化占地面积/项目占地面积)
(1)《国有土地使用证》(国土资源局)、(2)《建设用地规划许可证》(规委)、(3)《建设工程规划许可证》(规委)、(4)《建筑工程施工许可证》(住建委)、(5)《商品房预售许可证》返回搜狐,查看更多
020-88888888